BotzenArchitectuur
Architectuur & OntwerpIngenieur H. Botzen
LocatieHet Westland, NL
10 FOTO'S // REF: 173

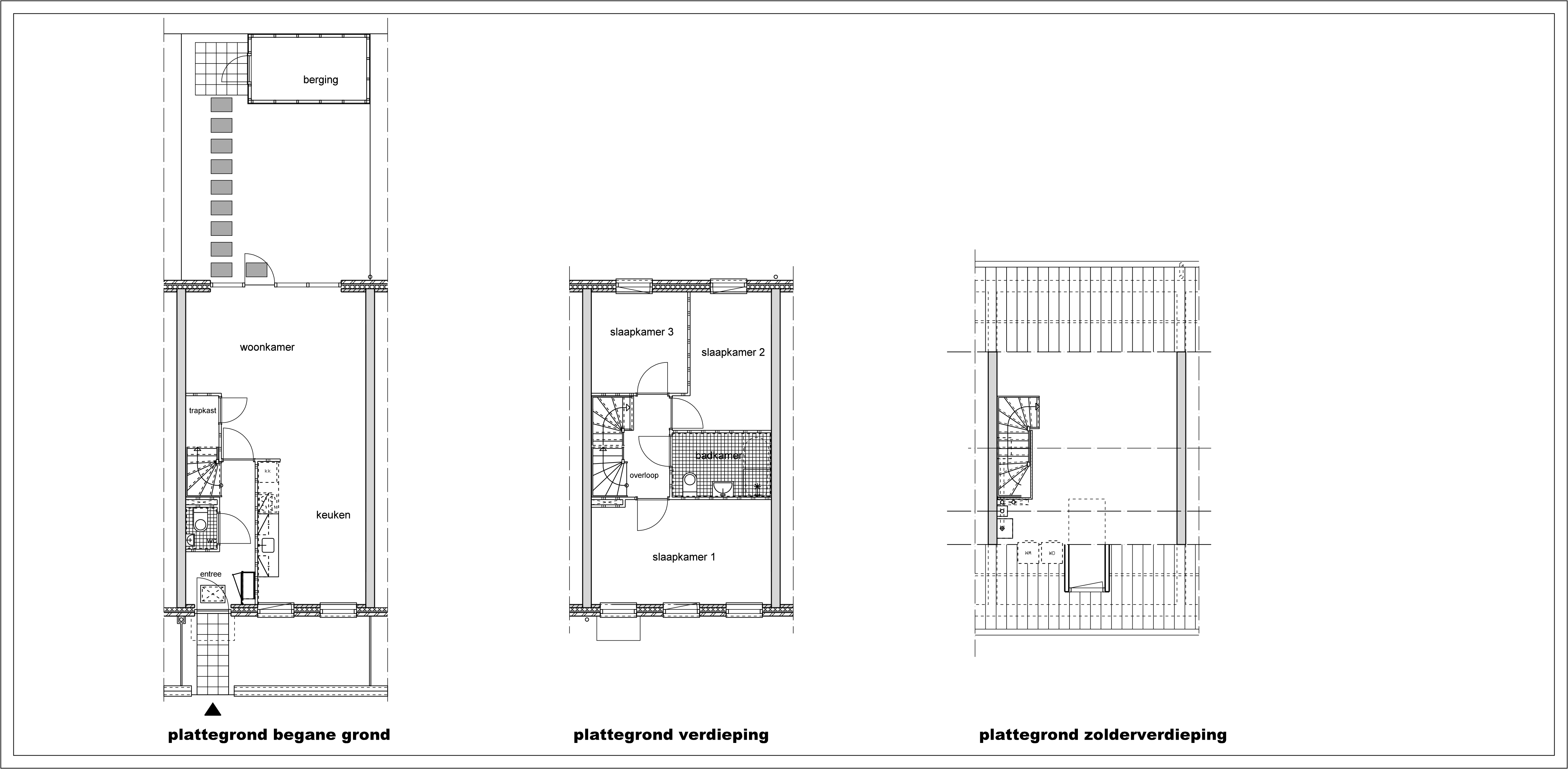
001 // 173 woningen Leidschenveen

002 // 173 woningen Leidschenveen

003 // 173 woningen Leidschenveen

004 // 173 woningen Leidschenveen

005 // 173 woningen Leidschenveen

006 // 173 woningen Leidschenveen

007 // 173 woningen Leidschenveen

008 // 173 woningen Leidschenveen

009 // 173 woningen Leidschenveen

0010 // 173 woningen Leidschenveen