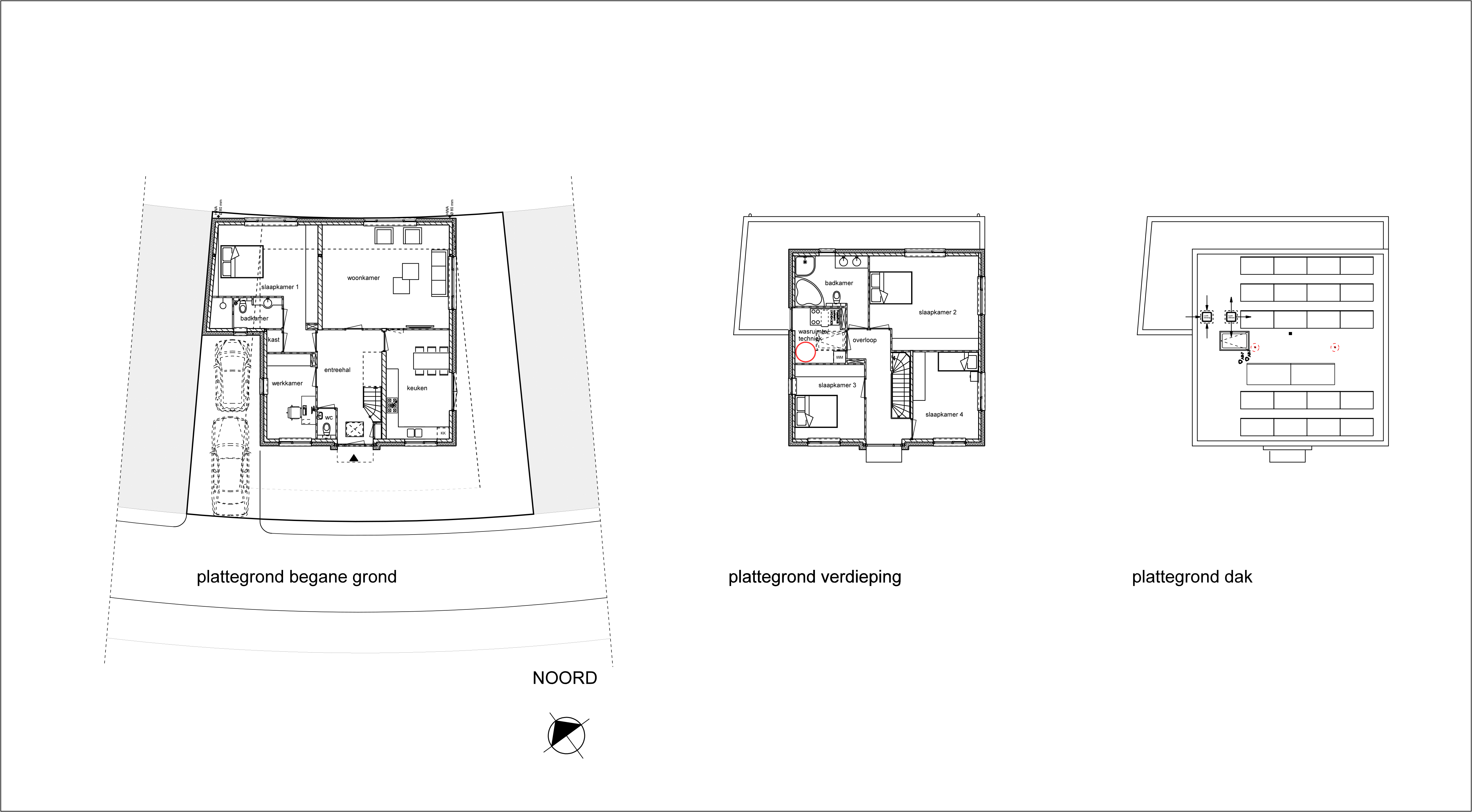
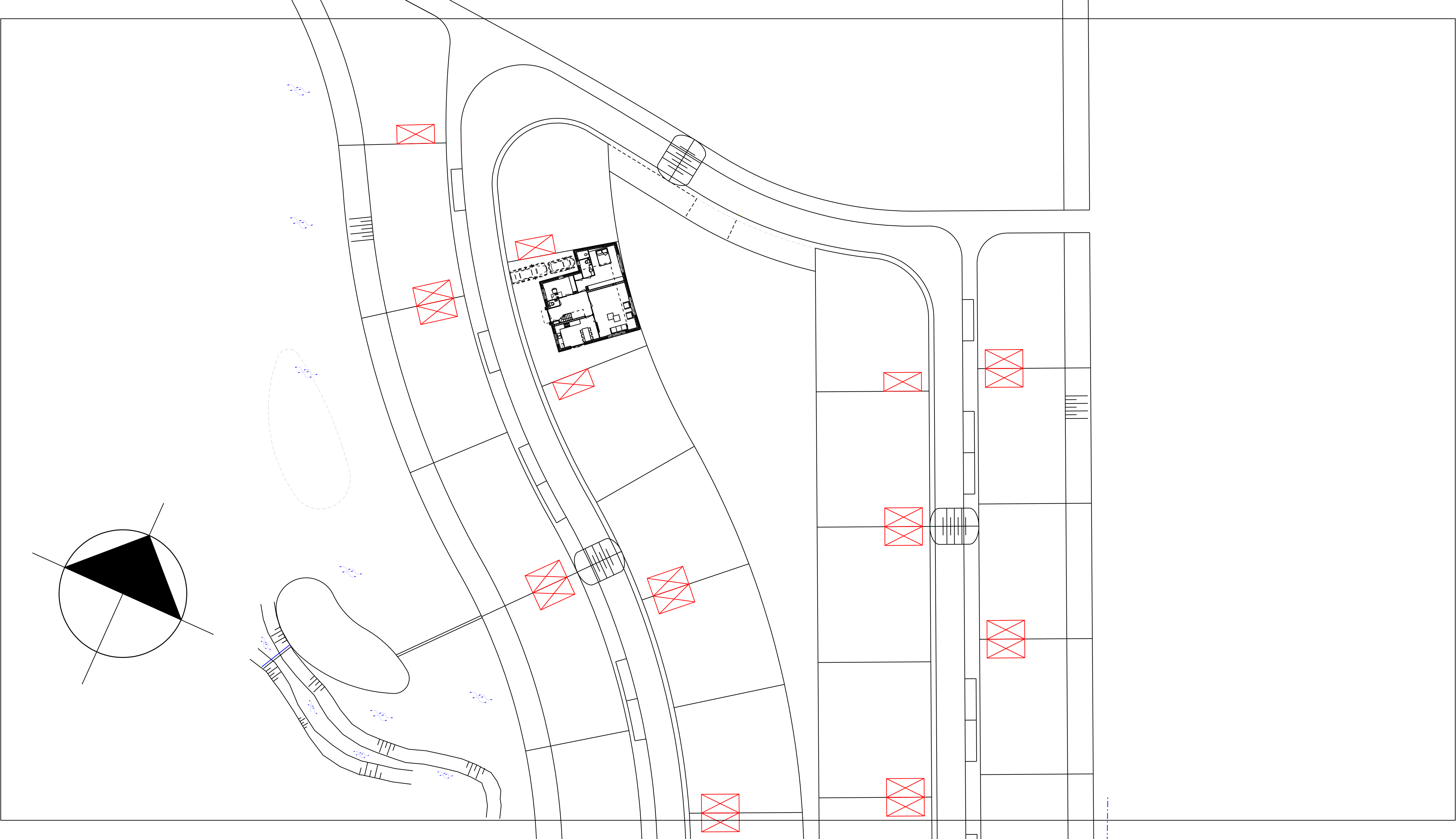
BotzenArchitectuur
Architectuur & OntwerpIngenieur H. Botzen
LocatieHet Westland, NL
9 FOTO'S // REF: Vil

001 // Villa Erasmushove

002 // Villa Erasmushove

003 // Villa Erasmushove

004 // Villa Erasmushove

005 // Villa Erasmushove

006 // Villa Erasmushove

007 // Villa Erasmushove

008 // Villa Erasmushove

009 // Villa Erasmushove