BotzenArchitectuur
Architectuur & OntwerpIngenieur H. Botzen
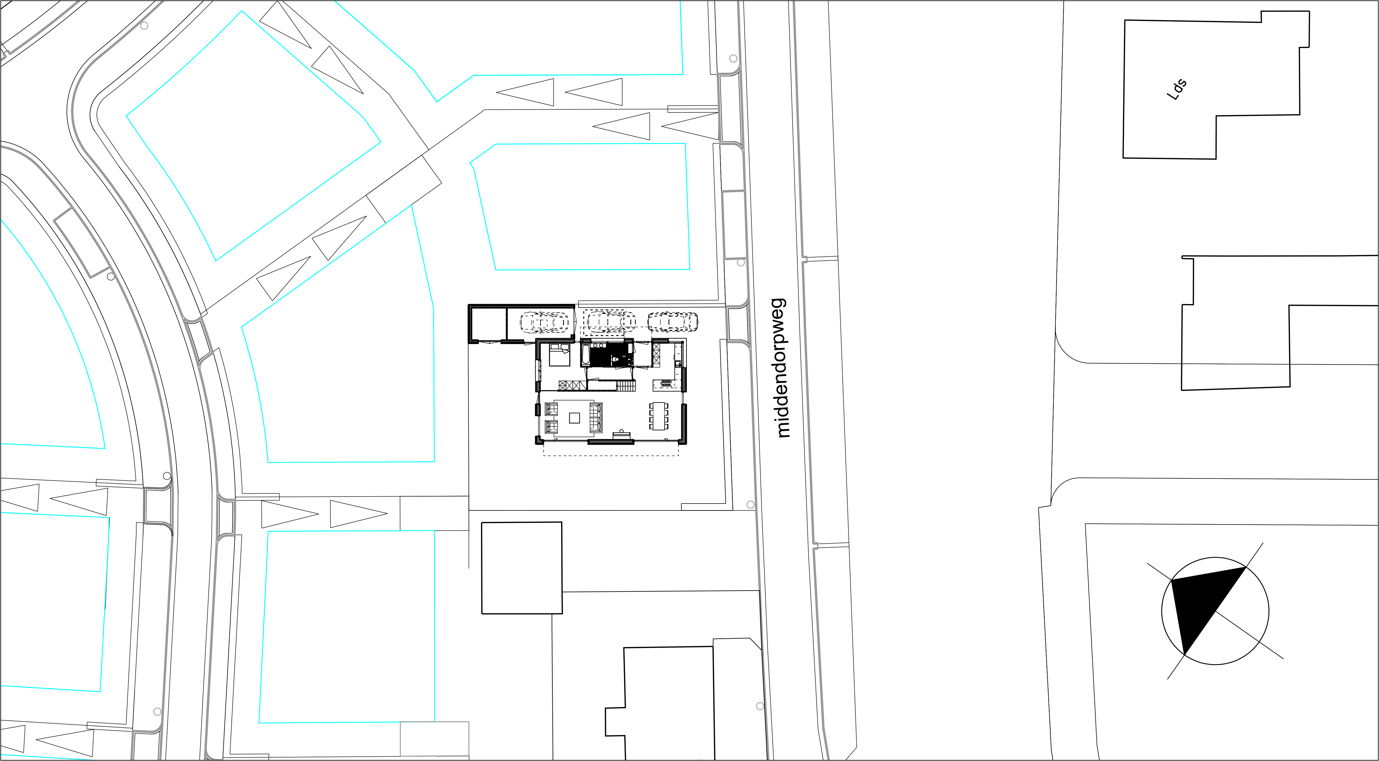
LocatieHet Westland, NL
7 FOTO'S // REF: Vil

001 // Villa Rijswijk-Buiten
002 // Villa Rijswijk-Buiten
003 // Villa Rijswijk-Buiten
004 // Villa Rijswijk-Buiten
005 // Villa Rijswijk-Buiten

006 // Villa Rijswijk-Buiten

007 // Villa Rijswijk-Buiten