BotzenArchitectuur
Architectuur & OntwerpIngenieur H. Botzen
LocatieHet Westland, NL
8 FOTO'S // REF: Vil

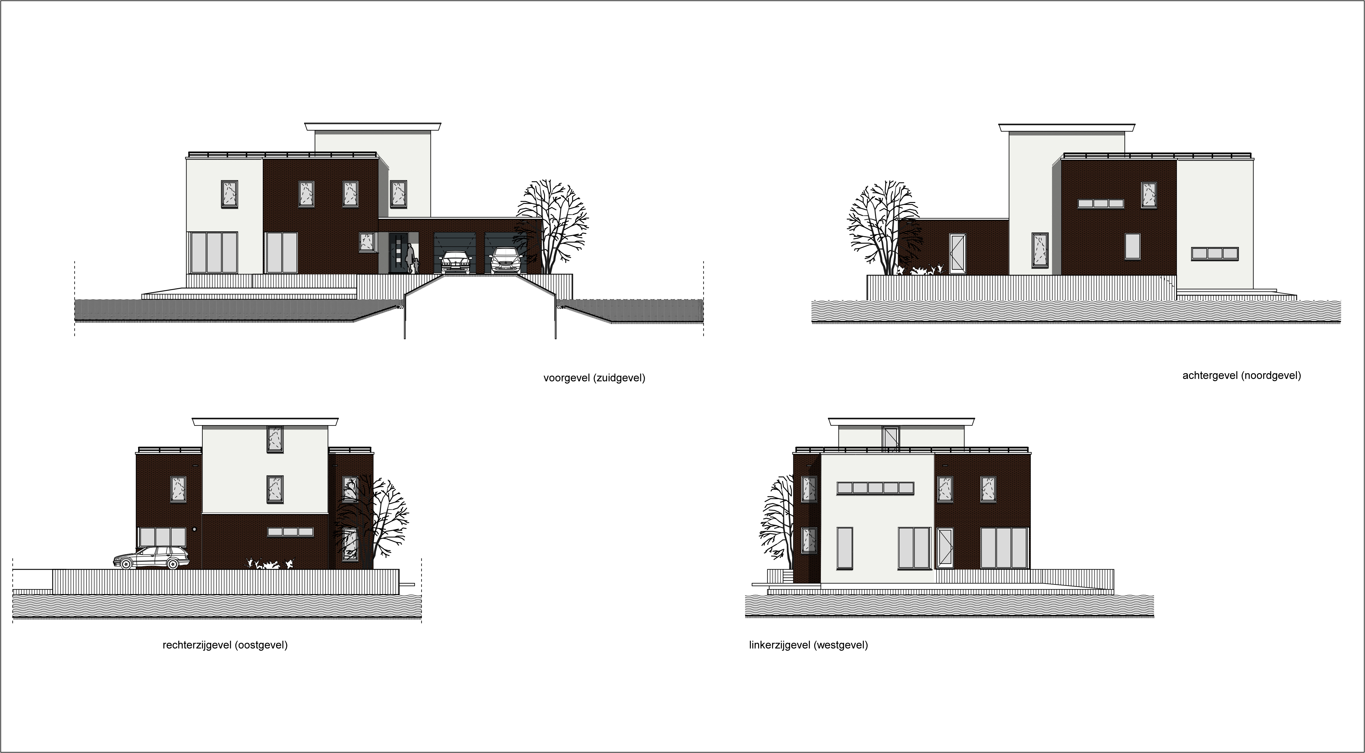
001 // Villa Vathorst Amersfoort

002 // Villa Vathorst Amersfoort

003 // Villa Vathorst Amersfoort
004 // Villa Vathorst Amersfoort
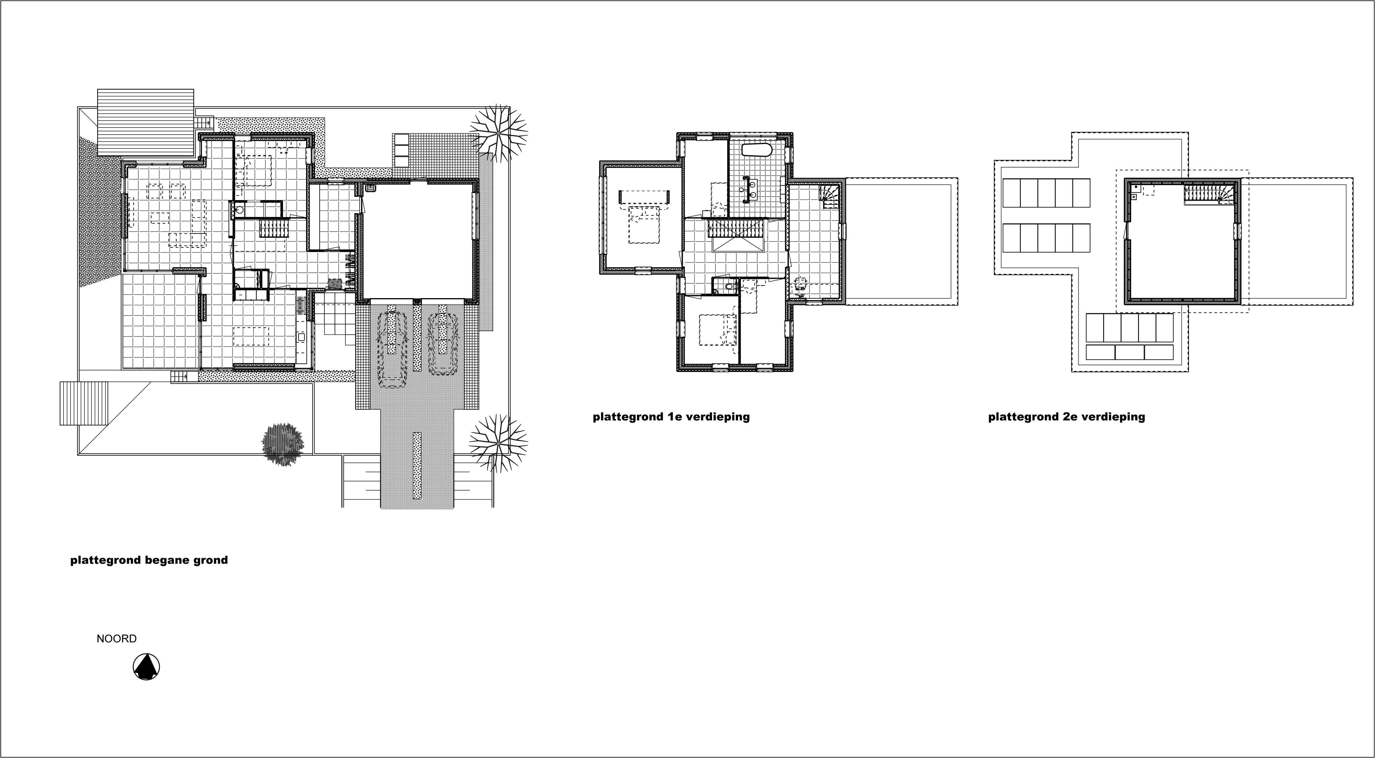
005 // Villa Vathorst Amersfoort
006 // Villa Vathorst Amersfoort

007 // Villa Vathorst Amersfoort

008 // Villa Vathorst Amersfoort