BotzenArchitectuur
Architectuur & OntwerpIngenieur H. Botzen
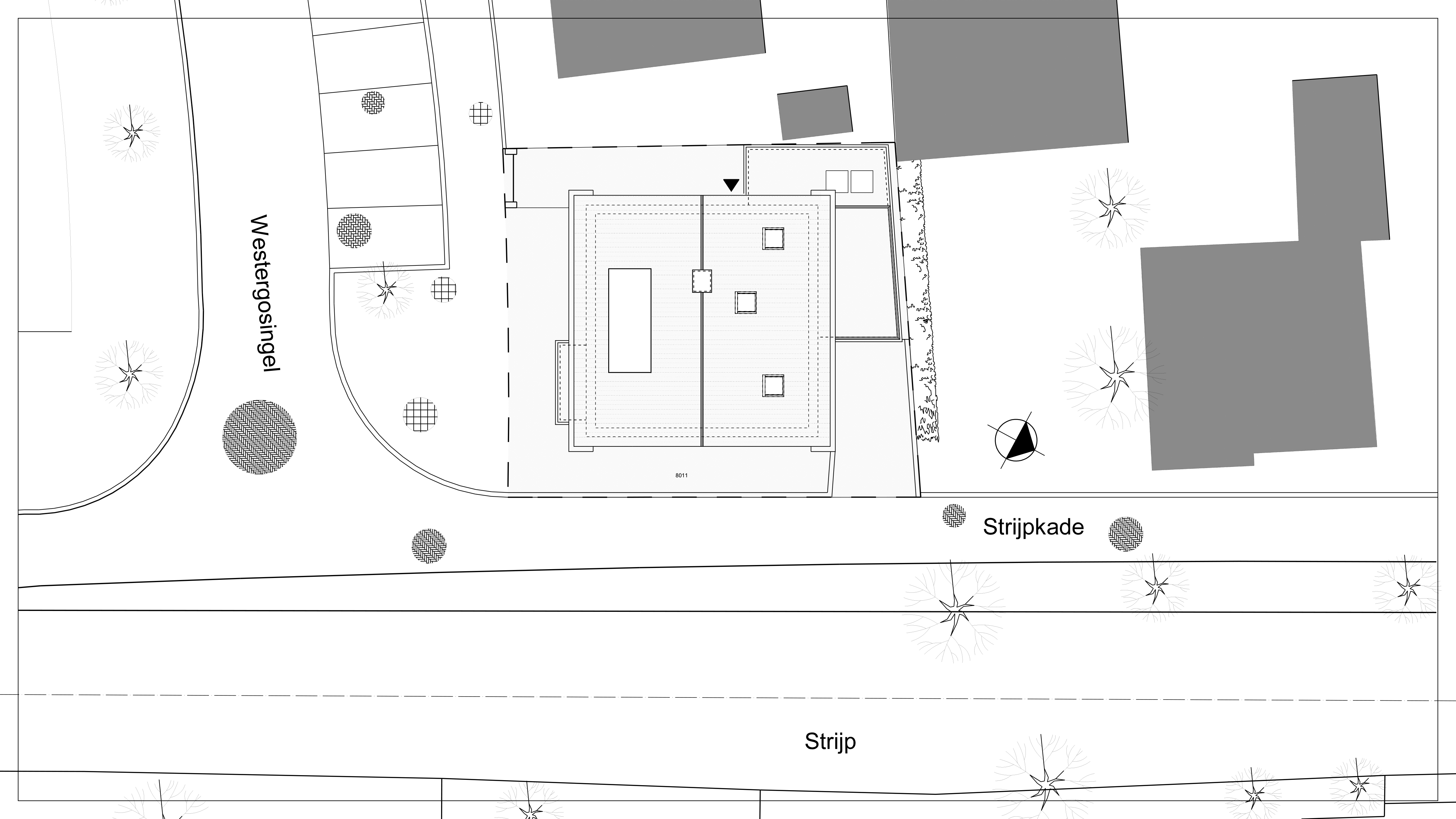
LocatieHet Westland, NL
8 FOTO'S // REF: Vil

001 // Villa Westergosingel Den Haag

002 // Villa Westergosingel Den Haag

003 // Villa Westergosingel Den Haag

004 // Villa Westergosingel Den Haag

005 // Villa Westergosingel Den Haag

006 // Villa Westergosingel Den Haag

007 // Villa Westergosingel Den Haag

008 // Villa Westergosingel Den Haag